Bau-Tagebuch

Endzustand

Außenansicht FES Ulm

Der Bau ist abgeschlossen.


Juni 2020

Mehrzweckhalle

Die Mehrzweckhalle ist fertiggestellt.


26.03.2020

Zaun

Der Zaun zum Park ist gesetzt.


20.03.2020

Prallwand

Die Prallwand wird montiert


17.12.2019

Fußbodenheizung mit Loch

Auch so etwas passiert leider. Der Türenbauer hat die Fußbodenheizung angebohrt.


10.12.2019

Spielfeldmarkierungen

Die Linien für den Sport sind auf dem Hallenboden angebracht.


November 2019

Stühle

Die Stühle für die Mehrzweckhalle sind geliefert.


Oktober 2019

Hallenboden

Der Boden der Mehrzweckhalle wird verlegt.


September 2019

Foyer

Die Wände der Halle werden mit Trockenbau-Platten verkleidet.


August 2019

Foyer

Die RWA-Fenster werden eingebaut (noch mit provisorischem "Deckel").


15.07.2019

Foyer

Der Schriftzug und das Logo der Schule wird an der Fassade zur Parkseite angebracht.


Juni 2019

Foyer

Die Bodenabschlüsse der Fassade und die Hof-Platten sind fertig.


Mai 2019

Mehrzweckhalle

Die neuen Kernzeit-Räume sind (fast) bezugsfertig.


08.04.2019

Foyer

Die Fenster- und Tür-Elemente des Foyers werden eingesetzt.


21.03.2019

Mehrzweckhalle

Die Fußbodenheizung und der Rohfußboden in der Mehrzweckhalle sind fertig.


03.12.2018

Küche

Der Anbau für unser neues Foyer und den Geräteraum steht im Rohbau.


03.12.2018

Fassade

Der Bodenbelag im Kernzeitraum ist gelegt.


06.11.2018

Küche

Die Küche ist weitgehend eingebaut.


26.10.2018

Fassade

Das Gerüst ist weitgehend abgebaut, bzw. umgesetzt.


26.10.2018

Fassade

Die Eingangstüren sind eingesetzt.


20.09.2018

Fassade

Die Fassade wird angebracht.


10.09.2018

Estrich im Kernzeitraum

Die Toiletten sind fertig gefliest.


27.06.2018

Estrich im Kernzeitraum

Der Estrich im Kernzeitbereich ist gegossen.


20.06.2018

Heizverteiler

Die Heizschlangen für die Fußbodenheizung sind verlegt und an den Verteiler angeschlossen.


25.04.2018

Verteiler Fußbodenheizung

Die Verteiler für die Fußbodenheizung sind gesetzt. Mehr Bilder dazu in unserer Fotogalerie.


19.04.2018

Der Innenausbau kommt voran.

Die Hallendecke wird gestrichen und die Wände werden verkleidet.


08.03.2018

Der Innenausbau kommt voran.

Der Innenausbau kommt voran. Die Wände werden verkleidet und an die Decken kommen Akustik-Elemente. Mehr Bilder dazu in unserer Fotogalerie.


14.12.2017

Der Kran ist weg.

Der Rohbau ist so weit abgeschlossen, dass der Kran wieder abgebaut werden konnte und der Pausenhof nun wieder besser nutzbar ist.


15.11.2017

Das Dach ist zu.

Die Oberlichter für den Kernzeit-Bereich sind eingesetzt. Mehr Bilder dazu in unserer Fotogalerie.


31.10.2017

Das Dach ist zu.

Das Dach ist geschlossen. Die Innenwände stehen. Die Balken für die Zwischendecke liegen. Mehr Bilder dazu in unserer Fotogalerie.


13.10.2017

Die Fundamente werden gegossen

Alle Außenwände stehen.


10.10.2017

Die Fundamente werden gegossen

Das erste Wandelemet wird an seinen Platz gehoben und fixiert. Mehr Bilder dazu in unserer Fotogalerie.


09.10.2017

Die ersten Wandelemente rollen auf die Baustelle

Die ersten Wandelemente rollen auf den Hof. Mehr Bilder dazu in unserer Fotogalerie.


28.09.2017

Die ersten Wandelemente rollen auf die Baustelle

Das Gerüst für den Rohbau steht. Mehr Bilder dazu in unserer Fotogalerie.


27.09.2017

Die Fundamente werden gegossen

Der Parkplatz ist fertig und der Zugang zum Park wieder nutzbar.


12.09.2017

Die Fundamente werden gegossen

Die Arbeiten am Parkplatz östlich des Anbaus haben begonnen.


01.08.2017

Die Fundamente werden gegossen

Das Fundament und die Bodenplatte des Foyer-Anbaus sind fertig. Nun können die Wände aufgerichtet werden.


13.07.2017

Die Fundamente werden gegossen

Nachdem in den vergangenen Tagen der Bagger die Grube dafür ausgehoben hat, werden die Streifen-Fundamente für den Foyer-Anbau gegossen.


06.07.2017

Der erste Beton fließt

Der erste Beton fließt! Die "destruktive" Phase ist abgeschlossen und die "konstruktive" Phase beginnt. Als erster Schritt für den Rohbau werden die Rinnen, Löcher und Gräben in der Bodenplatte mit Beton eingeebnet, so dass darauf sauber aufgebaut werden kann.


26.06.2017

Der Abriss ist abgeschlossen

Leider sind die Abrissarbeiten nicht wie geplant in den Ferien abgeschlossen worden. Aber nun ist der Abriss geschafft und die nächste Bauphase kann beginnen. Mehr Bilder dazu in unserer Fotogalerie.


21.06.2017

Wasserschaden

Der Abriss des Hallendachs hat zwei Mauerdurchbrüche der Witterung ausgesetzt, die bisher kaum zu sehen und vor allem vor Regen geschützt waren. Diese Durchbrüche enden innerhalb über der Trockenbaudecke. Und nach dem ersten Regen...


13.06.2017

Der Abriss beginnt

Der Abriss der Halle beginnt mit über einwöchiger Verspätung, aber die Arbeiten gehen zügig voran. Mehr Bilder dazu in unserer Fotogalerie.


03.06.2017

Die Fenster sind ausgebaut

Die Fenster der Hallenfront sind für uns nicht mehr verwendbar. So hat der Trägerverein beschlossen die Fenster an Liebe in Aktion zu spenden. Sie sollen nach Kamerun transportiert und dort in einem Krankenhaus eingebaut werden. So werden diese Fenster in Eigenleistung ausgebaut und für den Transport vorbereitet. Mehr Bilder dieser Aktion finden sie in unserer Fotogalerie.


02.06.2017

Baufreigabe

Die Baufreigabe ist da. Nun kann es endlich richtig los gehen. Der (Teil-)Abriss der Halle ist für die Pfingstferien geplant, damit die Kinder möglichst sicher sind und der Schulbetrieb möglichst wenig gestört wird.


28.04.2017

Abwasser-Rohre für die Duschen

Die Abwasser-Rohre des neuen Dusch-Bereichs werden verlegt.


19.12.2016

Die Platten können wieder verlegt werden

Endlich können die Platten im Pausenhof wieder verlegt werden, so dass der Bauzaun uns nicht mehr stört... Mehr Bilder dazu in unserer Fotogalerie.


28.11.2016

Die Abwasser-Rohre werden verlegt.

Die Verlegung der Abwasser-Rohre, die eigentlich in den Herbstferien abgeschlossen werden sollte, zieht sich leider hin. Mehr Bilder dazu in unserer Fotogalerie.


25.11.2016

Das Baugesuch ist genehmigt. Nun muss die Statik gemacht werden, damit die Baufreigabe erfolgen kann.


22.10.2016

Die Halle ist leer - der Bau kann beginnen.

In Vorbereitung der Umbauarbeiten wurde Halle von Eltern unserer Schule komplett leer geräumt. Damit sind die Voraussetzungen für den Baubeginn geschaffen. Nun heißt es warten auf die Baufreigabe.


27.01.2016

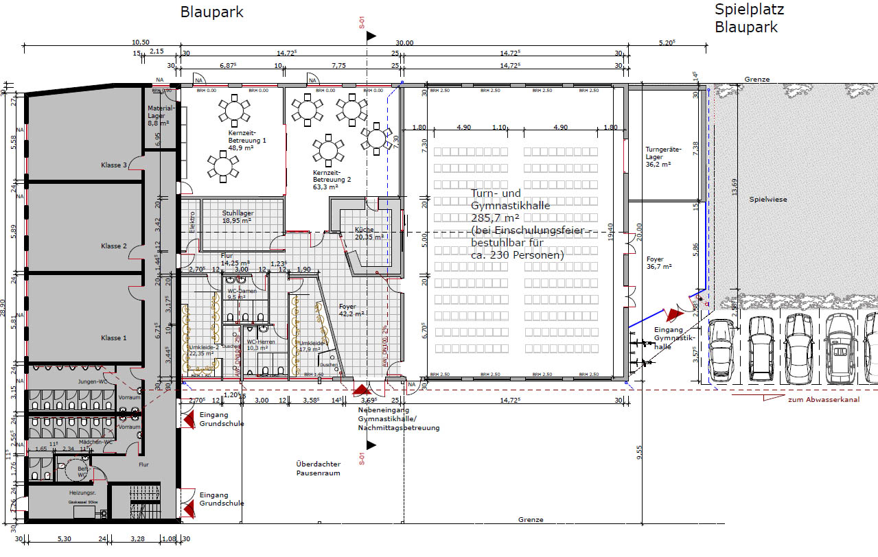
Grundriss EG

Das Baugesuch für unseren Hallenumbau wird bei der Stadt Ulm eingereicht.